Godziny otwarcia
Pon - Pią od 9:00 do 18:00
NAPISZ DO NAS
biuro@kawczaresidence.pl
ZADZWOŃ
+48 606 222 606
ODWIEDź
ul. Kawcza 42
wybierz dom dla siebie
Informacje projektowe

Kawcza Residence

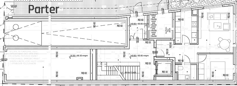
Na działce zaprojektowano budynek mieszkaniowy wielorodzinny z usługą. Bryła budynku jest maksymalnie czterokondygnacyjna, z kotłownią zlokalizowaną na dachu. W budynku zaprojektowano 7 mieszkań o powierzchniach od 50m2-75m2 oraz jeden lokal usługowy w parterze. Pod większością działki znajduje się kondygnacja podziemna, przeznaczona na garaż samochodowy oraz pomieszczenia techniczne, w tym zbiornik retencyjny. Przewidziany jest ogród prywatny dla jednego z mieszkańców

4

kondygnacje

7

7

mieszkań

1

winda

1

1

lokal usługowy

8

miejsc parkingowych
szczegóły mieszkań

struktura pomieszczeń

Kuchnia

Kuchnia i aneksy kuchenne mają bezpośredni dostęp do światła dziennego. Ich szerokość pozwala na urządzenie ciągu roboczego z pełnym wyposażeniem kuchennym (zlew, zmywarka, kuchenka, lodówka). We wszystkich mieszkaniach z pokoju dziennego możliwe jest wyście na balkon. Miejsce na pralkę zaplanowano w łazienkach lub wydzielonych garderobach.

zlew zmywarka

kuchenka lodówka

miejsce na pralkę

01
Panele fotowotaiczne
02
Gaz miejski
03
Elektryczność
04
Wentylacja hybrydowa
05
Klimatyzacja
Cechy rezydencji

Dlaczego wybrać Kawcza Residence

więcej informacji uzyskasz tutaj

umów się na spotkanie

+48 606 222 606

Plany rezydencji

Plan ogólny

Kondygnacje

4

Mieszkań

7

Winda

1

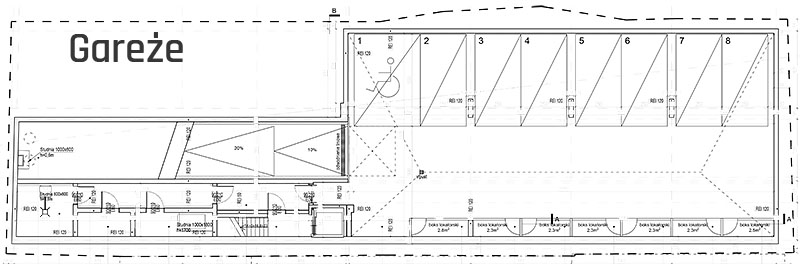
Garaż

8

PARKING Rowerowy

12

Kotłownia gazowa

Dach

Balkony

każdy lokal

W budynku zaprojektowano 7 mieszkań o powierzchniach od 50m2-75m2 oraz jeden lokal usługowy w parterze. Na parterze znajduje się jedno mieszkanie, pozostałe 3 kondygnacje mieszkalne są powtarzalne z dwoma mieszkaniami na każdej kondygnacji. Kondygnacja 2 powiększona jest o zadaszony taras domykający pierzeję ulicy Kawczej. Budynek ma jedną kondygnację podziemną, w której przewidziano garaż 8-stanowiskowy. Ponad dachem przewidziano nadbudówkę, w której umieszczona jest kotłownia gazowa. Na terenie inwestycji przewidziano zadaszone miejsce do parkowania 12 rowerów.

co w okolicy

Sąsiedztwo

Szpital 

odległość 3 km 7 min

Promenada

odległość 1,4 km 3min

Adres

Napisz do nas:

biuro@kawczaresidence.pl

Zadzwoń:

+48 606 222 606

Odwiedz nas:

KAWCZA 42

kontakt

biuro@kawczaresidence.pl

+ 48 606 222 606